How do I request items from Main Campus
to be delivered to an education center?
When viewing a title in OneSearch, use the “Request” link to place a hold on the item. Select the center you want as your pickup location. See the video below on how to request a book.
To provide locker services, the library has contracted with Luxer Corporation. When you make a pickup request, Luxer is provided with your name, student email address, and Hartnell student ID so that it can send you notifications about your locker deliveries via email.
When you make your first locker pickup, you must accept Luxer One's terms of service before you retrieve your items. You may review these terms in advance at the Luxer One website. (See the Luxer Terms of Service and the Luxer Privacy Policy for more information.)
- When you use a locker, a camera snaps a picture of you. This image may be retained on Luxer's servers for up to 90 days.
- If you do not agree to these conditions, you should not use the lockers.
- When you pick up your item, you may enter your phone number to receive text messages about future deliveries.
If you need a wheelchair-accessible locker, you can select this option in your account setup. You may also contact library staff at 831-755-6872.
Items for Castroville will be delivered on Wednesdays; Alisal, Soledad, and King City on Thursdays. When the item is delivered to the locker and is ready for pickup, you will receive an email from support@luxerone.com. Please add this email address to your contacts to make sure the email doesn't land in your spam folder.
The email will contain a QR code and a numeric code. Bring these codes with you when you come for pick-up. The lockers are equipped with a touch screen. When you arrive, you can either scan the QR code or type the code on the touch screen, and the locker will open. After you retrieve your items, please shut the locker door.
If you don't pick up the items promptly, you will receive reminders from Luxer One. If you haven't picked up the items after 5 days, the items will be removed from the locker and your loans will be canceled.
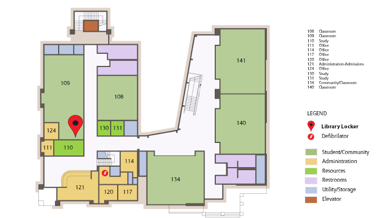
You can pick up items during all open hours of the center. See below for the location of the lockers for each center:
Castroville
Alisal - Building A
Soledad
King City - First Floor 
To return an item at a locker, select the "Begin Dropoff" button on the screen, and enter your Hartnell email in the form. You will be prompted to take a picture of the item you are returning on the touchpad screen. Select a locker for your item. The door will open for the locker you selected. Place your item in the locker and shut the door. Library staff will remove the item and return it to the main campus library.
You may return an item to the locker even if you checked it out in person. You will need to contact library staff at (831) 755-6872 in advance so that we can register you with Luxer One.